
中古マンションを購入したときや家族のライフスタイルが変わったときに、「使いづらそう」「自分たちの暮らしにあわない」と感じる方も多いでしょう。
マンションでもリノベーションによって、部屋数や配置などの間取りは変えられます。ただし構造や管理規約によって制限が出る可能性もあるので、それらを把握したうえで希望を整理することが大切です。
そこで本記事では、マンションの間取りリノベーションの成功事例を紹介します。マンションリノベーションでのよくある制限や注意点も説明しますので、マンションリノベーションをお考えの方は、ぜひ参考にしてください。
目次
1.マンションの間取りリノベーションには制限がある
冒頭でもお伝えしたように、マンションリノベーションには制限がつきものです。
制限の内容によっては間取り変更ができない可能性があるので、最初に頭に入れておきましょう。
1-1.マンションの構造上不可能な間取り変更がある
マンションでとくに多いのは、次のような制限です。
- 壁の撤去をともなう間取り変更
- PS(パイプスペース)の移動
- キッチンや浴室などの水まわり設備の大幅な移動
マンションでも、部屋数を増やしたり配置を変えたりするなど、壁の撤去をともなう工事は可能です。しかしそれができるのは、柱で建物を支える『ラーメン構造』で建てられたマンションのみ。壁で建物を支える『壁式構造』だと壊せない壁が出てくるため、どうしても間取り変更に制限が出ます。
また、マンションの各住戸には、『PS(パイプスペース)』という配管が通っている空間があります。PSは上下階でつながっているため、いかなる場合も移動はできません。
間取り変更の希望でとくに多いのが「水まわり設備の移動」ですが、PSとの位置関係や天井の構造上の問題でできないケースも多いため注意しましょう。


1-2.管理規約により制限されている工事がある
構造上の問題をクリアしていたとしても、マンションの管理規約によって工事に制限が出ることもあります。たとえば、バルコニーや窓、玄関ドアは共用部分にあたるため、リノベーションは原則としてできません。
さらに組合によっては、次のような工事が禁止されていることも。
- 床暖房の設置
- 電気容量の変更(IHクッキングヒーターの導入など)
- 騒音等級を満たさない床材への交換
- 配管類の交換
専有部分ならば自由にリノベーションできると思われがちですが、このように意外と制限があります。管理規約を破ると工事の中止や原状回復を求められる可能性があるため、必ず工事前に確認しておきましょう。


2.実例14選!間取り変更で理想の暮らしを叶えた事例集
ファッションと同じように、住宅のトレンドも時代とともに変わっていくものです。
これからリノベーションをするのなら、どのような間取りが使いやすいのでしょうか?間取りの成功事例を一挙紹介していきますので、ぜひ参考にしてください。
2-1.広々LDKを実現【事例1~4】
2010年代後半ごろからリビング学習が増えたことで、「リビングは家族団らんの場」で、「個室は寝る場所」という位置づけになりつつあります。そこで増えているのが、LDKを広くする間取りです。家で過ごす時間の大半をリビングで過ごすものと想定して、隣接する和室や個室を撤去する形で、広々としたLDKをつくります。
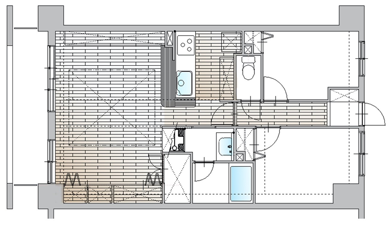
【事例1】一部屋なくし、リビングを広くする間取り変更

▼間取り図before

▼間取り図after

| 間取り | 3LDK→2LDK |
|---|---|
| リフォーム面積 | 38.3㎡ |
20年前に購入したマンションのリビングダイニングを広げた事例です。
LDKに隣接する和室の壁と畳を撤去して、広々とした空間に。床全体を張り替えることで部屋の境目にあった段差をなくすとともに、統一感を演出。もともと19畳だったリビングダイニングが、25畳の広さになりました。
出典:http://www.8044.co.jp/gallery/340
【事例2】和室の段差もあわせて撤去!一人暮らしでも安心なバリアフリーリビング

▼間取り図before

▼間取り図after

| 間取り | 3LDK→2LDK |
|---|---|
| リフォーム面積 | 67㎡ |
| リフォーム費用 | 471万円 |
老後も安心して過ごせるよう、リノベーションを前提に中古マンションを購入。ケアマネージャーでもある娘様のご協力のもと、バリアフリーを取り入れたリノベーションを実施しました。和室とリビングの間仕切りを撤去して高さをそろえることで、開放的なバリアフリーのリビングへと生まれ変わっています。
出典:http://www.8044.co.jp/gallery/403
【事例3】壁付け収納を造作してリビング広々!スタイリッシュ空間へ

▼間取り図before

▼間取り図after

| 間取り | 3LDK→1LDK |
|---|---|
| リフォーム面積 | 63㎡ |
| リフォーム費用 | 871万円 |
大学生になるお子さんと暮らすために、マンションをリノベーションした事例です。
もともと3LDKの間取りでしたが、2人暮らしでは部屋数を持て余してしまうので、リノベーションを機に1LDKへと変更。来客があってもゆったりと過ごせるLDKやピアノ置き場を兼ねたウォークインなど、希望を詰め込んだリノベーションになりました。
出典:http://www.8044.co.jp/gallery/1221
【事例4】収納不足を改善し愛犬が駆けまわれる広々LDKを実現

▼間取り図before

▼間取り図after

| 間取り | 2LDK+S→1LDK+S |
|---|---|
| リフォーム面積 | 33㎡ |
| リフォーム費用 | 572万円 |
収納スペースが不足したのをきっかけに、リノベーションで間取りを変更した事例です。
リビング横にあった和室をなくしてリビングにし、もともと和室があった場所には壁一面に壁面収納を設置。収納力はバツグンです。
さらに愛犬たちが室内を走り回っても足腰に負担がかからないよう、床材には滑りにくい素材を選択。上下階の人たちに配慮して、床と天井に防音材も敷き詰めています。
収納不足が解消され、愛犬たちと安心して暮らせる住まいが完成しました。
出典:http://www.8044.co.jp/gallery/421
2-2.キッチン空間を大胆チェンジ【事例5~8】
マンションのキッチンといえば、ひと昔前まではシンク前だけがぽっかり空いている半対面のものが主流でした。しかし最近のトレンドは、開放的な対面キッチン。マンションのリノベーションでも「フルオープンの対面キッチンにしたい」との希望が増えています。
ここからは、構造や規約の問題で移動ができずとも、キッチン前の壁を撤去するだけで明るい対面キッチンを実現した事例を紹介します。
【事例5】キッチン前の壁を撤去し開放的な対面キッチンに

▼間取り図before

▼間取り図after

| 間取り | 4LDK |
|---|---|
| リフォーム面積 | 115㎡ |
| リフォーム費用 | 819万円 |
バリアフリーを目的に、室内全体をリノベーションした事例です。
施主さまが大幅な間取り変更を希望していなかったため、視覚的に空間を広く見せるためにキッチンとリビングの間の壁を撤去しました。白を基調とした明るい対面キッチンで、スタイリッシュなLDKが完成しました。
出典:http://www.8044.co.jp/gallery/73
【事例6】壁と吊り戸棚撤去で明るい対面キッチンへ

▼間取り図before

▼間取り図after

| 間取り | 2LDK→1LDK |
|---|---|
| リフォーム面積 | 54.5㎡ |
| リフォーム費用 | 548万円 |
中古物件の購入と同時に、現代のライフスタイルにあわせた間取りへとリノベーションした事例です。LDKに隣接する和室をなくして面積を広げ、さらに室内を広く見せるためにキッチン前の壁と吊り戸棚も撤去しました。吊り戸棚をなくした分の収納は、背面のカップボードで補います。移動なしで、開放感のある対面キッチンを実現しました。
出典:http://www.8044.co.jp/gallery/743
【事例7】アイランドキッチン中心の明るいリビングへ

▼間取り図before

▼間取り図after

| 間取り | 4LDK→3LDK |
|---|---|
| リフォーム面積 | 100㎡ |
| リフォーム費用 | 1,432万円 |
リタイアを機に、生活スタイルが変わるのにあわせてリノベーションを決断しました。ほぼ独立していたキッチンは、アイランド型にしてLDKの中心に配置。料理中もコミュニケーションを取れるようになりました。キッチン裏にパントリーを設け、生活感の見えるものをすべて収納することで、すっきりした空間を保つ工夫も施されています。
出典:http://www.8044.co.jp/gallery/988
【事例8】ロフトと開放的なキッチンでホームパーティーも楽しめるLDK

▼間取り図before

▼間取り図after

| 間取り | 3LDK→2LDK |
|---|---|
| リフォーム面積 | 106.25㎡ |
| リフォーム費用 | 926万円 |
生活をより充実させるために、スケルトンリフォームを行った事例です。
ホームパーティーをよく開くため、それを想定して部屋の中心にアイランドキッチンを設置。調理をしながらゲストたちと会話を楽しめます。
さらに最上階という利点を活かして天井裏にロフトを設置するほか、設備機器はすべてこだわりの品を選択。細部にまでこだわった設計で、部屋の雰囲気ががらりと変わりました。
出典:http://www.8044.co.jp/gallery/278
2-3.変化に備えて可変性を重視した変更【事例9~12】
子どもの成長、巣立ち、自分たちの老後と、ライフスタイルは時とともに変わっていくものです。それらの変化に対応できるようにと、間取り変更を希望する方も増えています。
【事例9】和室の間仕切り壁を仕切り戸に変更し個室にもできる空間に

▼間取り図before

▼間取り図after

| 間取り | 3LDK→可変3LDK |
|---|---|
| リフォーム面積 | 98㎡ |
| リフォーム費用 | 1,000万円 |
子どもが遊べるように畳は残したいとのご希望から、LDKと和室を一体化する間取り変更をしました。壁を撤去し、代わりに間仕切り戸を設置。普段は開け放して子どもを見守りながら家事ができ、来客時には間仕切り戸を閉めて個室として使えます。畳スペースの隣にはクローゼットを新設したので、遊び道具の収納場所にも困りません。
出典:http://www.8044.co.jp/gallery/1222
【事例10】将来を見据えライフスタイルにあわせた住まいへ

▼間取り図before

▼間取り図after

| 間取り | 3LDK+S→2LDK+S |
|---|---|
| リフォーム面積 | 40㎡ |
| リフォーム費用 | 476万円 |
子どもの誕生を機に中古物件を購入し、リノベーションした事例です。
3LDKから2LDKへと変更し、広々としたLDKを実現。子どもが成長したときに部屋を分けられるように、間仕切り壁を後付けできる仕様になっています。
出典:http://www.8044.co.jp/gallery/401
【事例11】寝室とトイレを隣接させた介護を見据えた設計

▼間取り図before

▼間取り図after

| 間取り | 3LDK→2SLDK |
|---|---|
| リフォーム面積 | 76㎡ |
| リフォーム費用 | 1,093万円 |
定年退職を機に、老後を見据えた住まいへとリノベーションした事例です。
老後は自宅で過ごす時間だけではなく調理回数も増えるため、夫婦2人でキッチンに立てるように場所を移動。さらに寝室をトイレ横に移動させるなど、将来的に介護が必要になったときの負担を軽減できるように、さまざまな工夫を取り入れました。
出典:http://www.8044.co.jp/gallery/1189
【事例12】段差を解消してバリアフリー住宅を実現

▼間取り図before

▼間取り図after

| 間取り | 3LDK→2LDK |
|---|---|
| リフォーム面積 | 68㎡ |
| リフォーム費用 | 587万円 |
お子さんたちが巣立ち、夫婦2人暮らしになったのを機にリノベーションした事例です。
LDKに隣接する和室は来客用としてしか使っていなかったため、洋室化してリビングを拡張。さらにキッチン前の壁も撤去して対面式にし、開放感を演出しています。
リフォーム前は家全体に段差があることが悩みでしたが、床を上げることでバリアフリー化。老後も安心して暮らせる、快適な住まいが完成しました。
出典:http://www.8044.co.jp/gallery/1273
2-4.趣味・働き方にあわせた空間設計【事例13・14】
コロナ禍をきっかけに、テレワークや在宅ワークをする人が増えただけではなく、自宅で楽しめる趣味を持つ人も一気に増えました。自宅でも仕事に集中し、趣味をゆっくりじっくりと楽しむために、間取りを変更する方も増えています。
【事例13】シンプルなLDKから仕事部屋と区別した空間へ

▼間取り図before

▼間取り図after

| 間取り | 3LDK→2LDK |
|---|---|
| リフォーム面積 | 69.26㎡ |
| リフォーム費用 | 369万円 |
中古マンションを購入して、自分たちの好みにあわせてリノベーションした事例です。
LDKに隣接していた和室は撤去してワークスペースへと改築し、デスクや収納、ソファを置くなど在宅仕事もはかどる仕様に。さらに壁面収納や調湿建材(エコカラット)を取り入れるなど、ライフスタイルに適用し、快適性も高めるリノベーションになりました。
出典:https://www.8044.co.jp/gallery/389
【事例14】趣味を楽しむ、新しいライフスタイルに向けたフルリフォーム

▼間取り図before

▼間取り図after

| 間取り | 4LDK→3LDK |
|---|---|
| リフォーム面積 | 100㎡ |
| リフォーム費用 | 1,432万円 |
リタイア後の生活を思う存分楽しむために、よりライフスタイルにあった部屋へとリノベーションした事例です。ウォークイン奥に隠れ家のような書斎をつくり、居室スペースを圧迫していた書籍やコレクション類はすべてそこに収納しました。
日当たりのよい書斎で、おこもり気分で趣味を楽しめます。
出典:http://www.8044.co.jp/gallery/988
3.マンションリノベーションの費用相場と費用を抑えるコツ
間取り変更をすると大がかりな工事になるので、費用面が心配になる方も多いでしょう。
ここではマンションをフルリノベーションするときの費用目安と、費用を抑えるコツを説明します。
3-1.マンションでのフルリノベーションの費用相場
マンションをフルリノベーションするときの費用は、1㎡あたりの施工面積で決まります。
目安は約12.5〜15万円/㎡で、施工面積ごとの費用目安は以下のとおりです。
| 施工面積 | 費用目安 |
|---|---|
| 50㎡ | 650~850万円 |
| 60㎡ | 750~990万円 |
| 70㎡ | 840~1,120万円 |
| 80㎡ | 920~1,240万円 |
| 90㎡ | 990~1,350万円 |
| 100㎡ | 1,050~1,450万円 |
上記は、内装をすべて解体してつくり直す『スケルトンリノベーション』を行うときの費用目安です。床材や壁紙、設備類もすべて入れ替えになります。
一方で、LDKに隣接する和室を撤去するなどの部分的な工事であれば、目安よりも費用を抑えられるでしょう。


3-2.リノベーション費用を抑えるコツ
続いて、リノベーションにかかる費用を抑えるコツも見てみましょう。
3-2-1.費用をかける箇所を厳選する
スケルトンリノベーションでは、注文住宅のように自分たちで細やかな仕様を決めていきます。そのためこだわりを詰め込みすぎると、あっという間に予算オーバーしてしまいます。
たとえば間取り変更もして内装材や建材、設備類にもハイグレード品を選ぶとなると、先ほど挙げた費用目安よりも高くなるでしょう。
費用を抑えつつも満足度が高いリノベーションをするためには、「費用をかける部分」と「かけない部分」をしっかりと決めておくことが大切です。予算が圧迫したときに妥協する部分まで考えておけば、予算オーバーを防げるでしょう。
3-2-2.補助金・減税制度を活用する
マンションリノベーションをしたときには、補助金制度や減税制度が利用できる可能性があります。2025年(令和7年)に利用できる可能性があるのは、次のような制度です。
補助金制度では補助額が高いものだと100万円を超える補助金が支給されるため、費用負担を大きく抑えられます。ただしどの制度も工事内容に要件があり、中には登録業者で工事しなければ申請ができないものも。
補助金制度の利用を希望する方は、その旨を必ず業者に伝えておきましょう。


3-2-3.リノベーションの範囲が少なくて済む物件を選ぶ
中古マンションを購入してリノベーションする場合、間取り変更が可能な物件ならば、どのような状態でも自分たち好みの住まいにつくり変えられます。しかし費用面を考えるのなら、リノベーションの範囲が少なく済む物件を選ぶのがおすすめです。
たとえば「キッチン前の壁を壊すだけで対面キッチンにできる」「隣接する和室をなくせば広いLDKにできる」ような物件なら、大がかりな間取り変更をせずとも希望を叶えられます。壁を壊す範囲を抑えられる物件を選ぶのがポイントです。
3-2-4.相見積もりを取る
リノベーションの1㎡あたりの単価は、会社ごとに異なります。
㎡単価は会社規模や標準仕様のグレードによっても変わりますが、会社がかけている宣伝費や人件費のような固定費も大きく影響します。たとえば不動産会社から紹介された会社は紹介料(マージン)がかかるため、費用は高くなりがちです。まったく同じ工事内容で依頼しても費用が変わることが多いので、相見積もりをして費用と内容を確認しておきましょう。
複数社から見積もりを取りたいときには、ぜひリフォームガイドをご活用ください。
お客さまの希望をもとに専属のコンシェルジュがリフォーム会社を選出し、相見積もりまでしっかりとサポートいたします。
4.マンションでの間取りリノベーションでの注意点
間取り変更をともなうリノベーションを行うときには、さまざまな注意点があります。
ここまでに説明したことのおさらいに近い内容にはなりますが、最後にもう一度確認しておきましょう。
4-1.間取り変更することで資産価値が下がる可能性がある
リノベーションによって室内がきれいになれば、資産価値は向上するものです。
しかし間取り変更によって部屋数を極端に減らしたり、個性的な間取りにしたりすると、売却時に買い手が見つかりづらくなります。
間取り変更によって、かえって資産価値が低下してしまう可能性がある点に注意しましょう。もし将来的に売却する可能性があるのなら、万人受けする間取りにすることをおすすめします。
4-2.管理組合への工事申請が必要
専有部分のリノベーションであっても、管理規約の内容によっては許可や工事申請が必要になります。よくあるのが、設計図・仕様書・工程表と、組合指定の申請書の提出です。
工事申請は決められた日数前までに提出を求められることが多いので、事前に確認し、忘れないように必ず手続きしておきましょう。
4-3.近隣住戸への事前説明が必要
間取り変更をともなうリノベーションでは、壁の解体時に騒音や振動が発生するため、上下左右にある住戸への事前説明が不可欠です。工事内容や期間などを説明し、できれば粗品などを渡しましょう。工事の説明や挨拶はリフォーム会社が行うのが一般的ですが、自分たちでも挨拶しておくことをおすすめします。
4-4.トラブルを避けるため、マンションリノベーションが得意な会社を選ぶ
ここまで説明してきたように、マンションでリノベーションを行うときには、工事制限や管理規約、近隣住戸への配慮など、さまざまな部分に気を使わなければなりません。
中でもとくに気を付けたいのが、施工中のマナーです。
騒音や工事中の大声での会話、住戸付近の散らかりなどの配慮がないマナーの悪い業者が入ると、近隣住民からのクレームによって入居後の関係に影響する可能性もあります。マンションでのリフォーム対応に慣れた優良会社を探すためには、リフォームガイドのようなポータルサイトを利用するのがおすすめです。自分たちの希望を叶えつつ、安心して依頼できる会社を紹介してもらいましょう。
『リフォームガイドマンションリノベ』では、全国でマンションの開発・管理を行う「あなぶきグループ」が、専門的な視点からもマンションリノベーションを安心して任せられる会社を厳選。あなたのマンションリフォーム・リノベーションが得意な会社を選んでご紹介しています。

マンションリノベーションの注意点を詳しくまとめた記事がありますので、ぜひこちらも目を通してみてください。


5.まとめ
マンションリノベーションで間取り変更をすれば、自分たちのライフスタイルや好みにあわせた部屋へと生まれ変わらせることができます。
しかし予算や工事制限、ライフスタイルの変化なども加味してプランを考えなければならないため、何が正解なのかと悩んでしまうと思います。
だからこそ、信頼できる専門家からのアドバイスが重要です。
予算を抑えつつも満足度が高いリノベーションにするためには、リフォーム会社を紹介してもらえるマッチングサービスの利用がおすすめです。
マンションリノベーションをお考えの方は、ぜひ、リフォームガイドをご活用ください。






![[事例1]一部屋なくし、リビングを広くする間取り変更](https://www.reform-guide.jp/topics/wp-content/uploads/2025/06/20250622-01.jpg)
![[事例2]和室の段差もあわせて撤去!一人暮らしでも安心なバリアフリーリビングへ](https://www.reform-guide.jp/topics/wp-content/uploads/2025/06/20250622-02.jpg)
![[事例3]壁付け収納を造作してリビング広々!スタイリッシュ空間へ](https://www.reform-guide.jp/topics/wp-content/uploads/2025/06/20250622-03.jpg)
![[事例4]収納不足を改善し愛犬が駆けまわれる広々LDKを実現](https://www.reform-guide.jp/topics/wp-content/uploads/2025/06/20250622-04.jpg)
![[事例5]キッチン前の壁を撤去し開放的な対面キッチンに](https://www.reform-guide.jp/topics/wp-content/uploads/2025/06/20250622-05.jpg)
![[事例6]壁と吊り戸棚撤去で明るい対面キッチンへ](https://www.reform-guide.jp/topics/wp-content/uploads/2025/06/20250622-06.jpg)
![[事例7]アイランドキッチン中心の明るいリビングへ](https://www.reform-guide.jp/topics/wp-content/uploads/2025/06/20250622-07.jpg)
![[事例8]ロフトと開放的なキッチンでホームパーティーも楽しめるLDK](https://www.reform-guide.jp/topics/wp-content/uploads/2025/06/20250622-08.jpg)
![[事例9]和室の間仕切り壁を仕切り戸に変更し個室にもできる空間に](https://www.reform-guide.jp/topics/wp-content/uploads/2025/06/20250622-09.jpg)
![[事例10]将来を見据えライフスタイルにあわせた住まいへ](https://www.reform-guide.jp/topics/wp-content/uploads/2025/06/20250622-10.jpg)
![[事例11]寝室とトイレを隣接させた介護を見据えた設計](https://www.reform-guide.jp/topics/wp-content/uploads/2025/06/20250622-11.jpg)
![[事例12]段差を解消してバリアフリー住宅を実現](https://www.reform-guide.jp/topics/wp-content/uploads/2025/06/20250622-12.jpg)
![[事例13]シンプルなLDKから仕事部屋と区別した空間へ](https://www.reform-guide.jp/topics/wp-content/uploads/2025/06/20250622-13.jpg)
![[事例14]趣味を楽しむ、新しいライフスタイルに向けたフルリフォーム](https://www.reform-guide.jp/topics/wp-content/uploads/2025/06/20250622-14.jpg)

なら